logo campitur

Guadalcanal contará con un Centro de Apoyo al Desarrollo

Las instalaciones ocuparan cerca de 500 m2 y estarán ubicadas en Tres Picos


Ayer, se produjo una reunión entre el Alcalde de Guadalcanal y la Delegada de Economía, Innovación y Ciencia de la Junta de Andalucía, Mª F. Amador Prieto, durante la cual se acordó la puesta en marcha de un Centro de Apoyo al Desarrollo Empresarial (CADE)  en la localidad, concretamente se construirá en Tres Picos.

Con esta iniciativa se pretende prestar servicios tanto a emprendedores como a empresas, asistencia en cuanto a información, formación, asesoramiento técnico especializado, búsqueda de vías de financiación y alojamiento empresarial en naves industriales y despachos para proyectos innovadores y/o generadores de empleo.

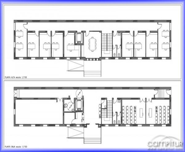
Este Centro de Iniciativas Empresarial contará con casi 500 m2 construidos, estando dotada la planta baja de 3 salas multifuncionales y 9 despachos, mientras que en la planta alta iría una sala de reuniones, a parte de las demás instalaciones.

Finalmente señalar que Ayuntamiento del municipio sevillano cuenta ya con la aprobación de la Primer Fase, subvencionado por el Plan de Empleo Estable, con lo cual las obras de ésta deberían de comenzar este próximo mes de diciembre.

 

Enviado por:

CampiTur.com

19/11/2010

¡¡Comparte esta noticia!!

Comentarios

de los usuarios


Los Usuarios aún no han comentado esta noticia. Sea el primero en comentar esta noticia.

* Todos los campos son obligatorios.

En estos comentarios se expresa la opinión de los internautas, no de CampiTur.com.

Reservado el derecho a eliminar los comentarios fuera de tema o que incumplan las normas de uso. No están permitidos comentarios injuriantes o contrarios a las leyes españolas.

Los usuarios pueden votar positiva o negativamente los mensajes y avisarnos de comentarios ofensivos.

Otras Noticias

Noticias Anteriores

La Semana del Turismo acoge la expo...

Del 23 al 30 en la casa de la Cultura

Agenda Campitur